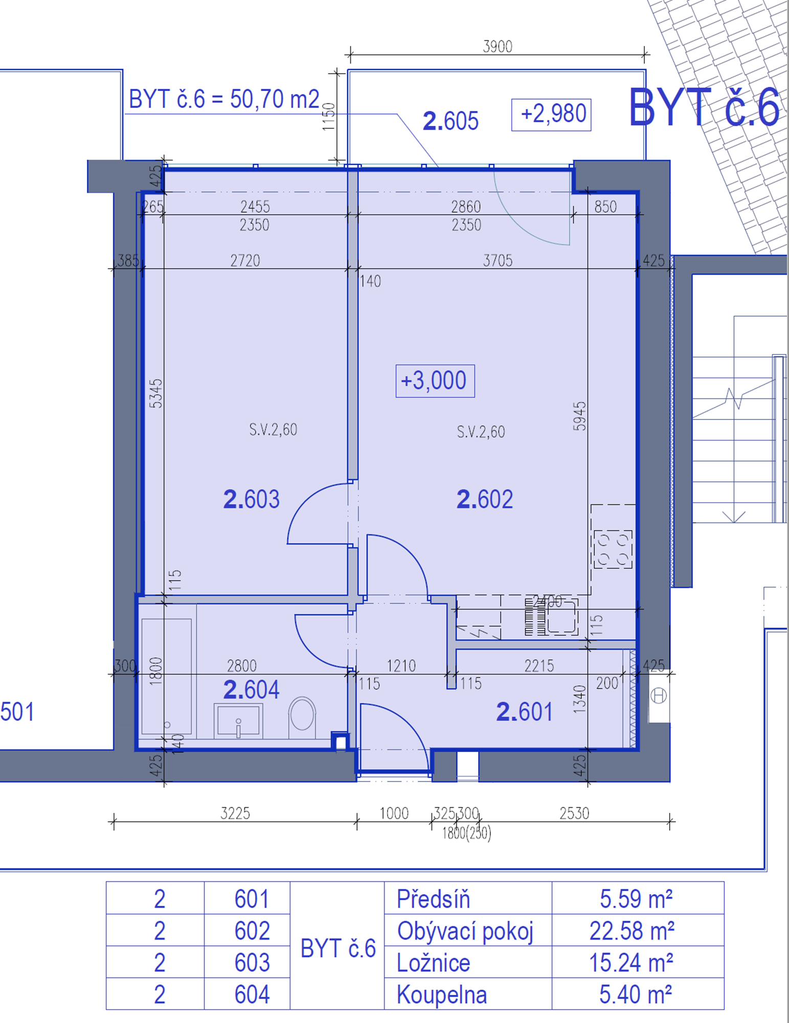
Sobín 2+kk-b

Sobín 2+kk